Lenovo Retail
In collaboration with Lenovo and Sketchin, we developed Lenovo Retail: an immersive retail space in the heart of Warsaw that redefines the Lenovo brand through architecture and material innovation. Designed with sustainability and user experience in mind, the store blends natural elements like bamboo with cutting-edge technology, creating a dynamic environment where visitors can explore products in real-life settings.
Located in the heart of Warsaw, Lenovo Retail is a retail space dedicated to the Lenovo brand, designed to reinterpret its global identity through architecture and materiality. Set within the historic Hotel Warszawa, one of the city’s oldest and most iconic buildings, the project extends over 200 square meters along one of the capital’s main streets, becoming both a point of reference for technology and an urban landmark.

Innovation and Sustainability
Lenovo Retail was conceived to embody the brand’s core values: innovation, connectivity, and responsibility. The design explores these principles through a distinctive palette of colours and materials, where the predominant use of bamboo plays a leading role. Bamboo, known for its rapid growth cycle and exceptional carbon absorption properties, is a renewable material that supports sustainable construction while offering remarkable mechanical strength and warm tactile qualities. Combined with neutral finishes and Lenovo’s signature red accents, bamboo shapes an immersive environment that blends technology and nature.

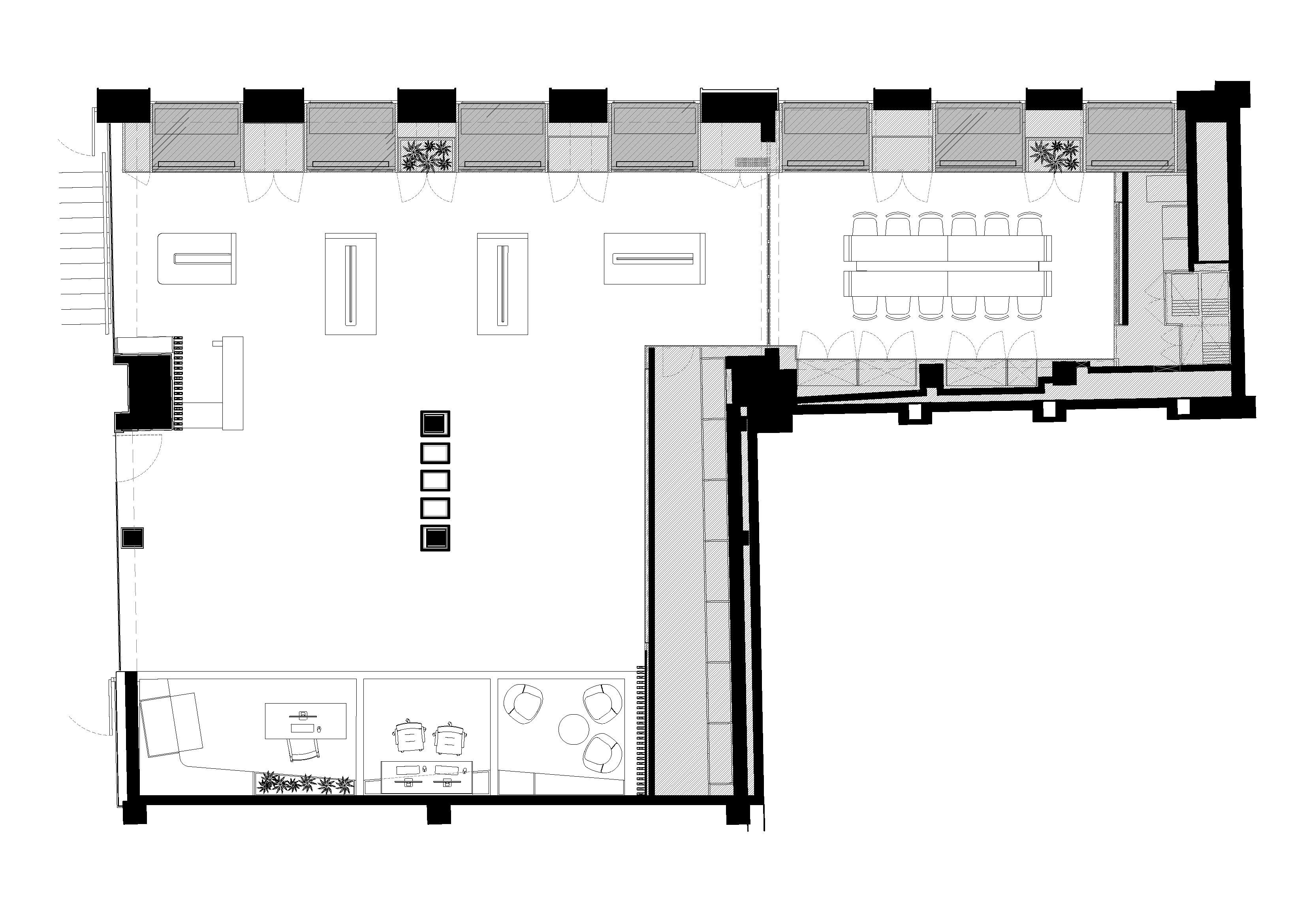
Facing the main street, the Retail hosts seven display windows, designed as urban showcases: integrated digital screens form the backdrop for the products on display. This interplay of physical and virtual presentation extends into the store interior, where every device is part of a digital environment that elevates the user experience.

Stepping inside, visitors are welcomed by fi ve coloured glass columns, an architectural gesture recalling Lenovo’s iconic red. These elements act as pedestals for the brand’s hero projects, framing a large digital screen that anchors the space visually and narratively.
Three zones, one Retail
On the right, the Lifestyle Area sits beneath a bamboo lamellar canopy that encloses three distinct ecosystems. These immersive micro-environments demonstrate the application of Lenovo products in real-life contexts: a living area, a gaming zone, and a fl exible home offi ce. Each zone invites visitors to interact with the technology and discover its concrete functionalities within a tangible setting.



To the left lies the main showroom, where four bamboo display tables present the latest products. Along with the historic windows, the design makes use of the building’s structural recesses to create thickened window niches that become green walls and display pockets.At the far end, an adaptable conference area is defi ned by a large bamboo table that can be entirely disassembled and replaced with modular seating, allowing the space to transform for talks, product launches, or larger community gatherings. All walls function as accessible storage surfaces, while the exposed ceiling installations articulate the interior layout with lines of light that mark and enhance each area.

uau design team
Gianluca Santosuosso, Gaia Cambri, Giulia Pozzoli, Agne Valiliauskaite, Mateusz Sak
Heading 1
Heading 2
Heading 3
Heading 4
Heading 5
Heading 6
Lorem ipsum dolor sit amet, consectetur adipiscing elit, sed do eiusmod tempor incididunt ut labore et dolore magna aliqua. Ut enim ad minim veniam, quis nostrud exercitation ullamco laboris nisi ut aliquip ex ea commodo consequat. Duis aute irure dolor in reprehenderit in voluptate velit esse cillum dolore eu fugiat nulla pariatur.
Block quote
Ordered list
- Item 1
- Item 2
- Item 3
Unordered list
- Item A
- Item B
- Item C
Bold text
Emphasis
Superscript
Subscript
